Overview
- Apartment
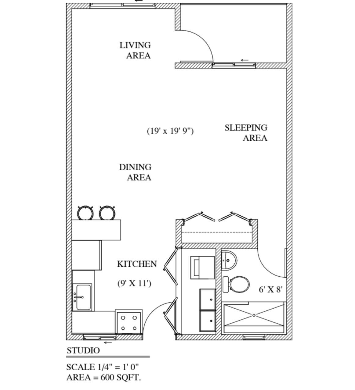
- 1
- 600 Sq Ft
Description
The Silver Charlton
The Silver Charlton is a residential development located at 5a-9 1/2 Charlton Road, St. Andrew, Jamaica. This property will consist of 44 executive studios and six three-bedroom apartments, each offering approximately 1,400 square feet of living space. The apartments are distributed across two blocks, both equipped with elevators for convenience.
Each apartment is designed with a private patio and features quality finishes throughout. The flooring is porcelain, and the siding is finished concrete, contributing to a modern and durable living environment. Residents will benefit from in-unit laundry facilities, a drying yard, a generator, a water tank, and assigned parking. Additional parking and visitor parking are also available on the property.
The Silver Charlton is situated in a highly regarded neighbourhood, surrounded by other gated communities. Many essential destinations are within walking distance, including churches, banks, the Revenue Center, post office, golf club, and the Super Valu Town Center, which offers a supermarket and a selection of popular restaurants.
On the grounds, residents can enjoy a range of amenities such as an exercise center, swimming pool, jogging trail, gazebo, barbecue pit, and landscaped gardens. The property sits on approximately 1.19 acres and is serviced by NWC water and sewer systems.
Short-term rental opportunities are available at The Silver Charlton. The ground floor studios offer a total area of 600 square feet and include one bathroom. The property is currently offered for sale and is classified as an apartment-style residence.
Address
Open on Google Maps- Address: 5a-9 1/2 Charlton Road
- State/county: St. Andrew
- Zip/Postal Code: 00000
- Area: Kingston 8
- Country: Jamaica
Details
Updated on April 12, 2026 at 1:55 pm- Property ID 98396
- Price J$ 29,900,000
- Property Size 600 Sq Ft
- Land Area 1.1911 Acres
- Bathroom 1
- Property Type Apartment
- Property Status For Sale
- Agency Coldwell Banker Jamaica Realty
Additional details
- Lot/Acres 1.1911
- Sq Ft 600
- Flooring Porcelain
- Type Property
- Siding Finished Concrete
- Water/Sewer NWC
- Parking Multiple C/P, Additional Parking, Visitor Parking
Mortgage Calculator
- Down Payment
- Loan Amount
- Monthly Mortgage Payment
- Property Tax


